Quadrilocale in vendita

Cagliari, Via monte santo - Is Mirrionis
€ 205.000
4 locali 4 locali
140 Mq 140 Mq
2 bagni 2 bagni

Quadrilocale in vendita

Cagliari, Via monte santo - Is Mirrionis

Descrizione annuncio

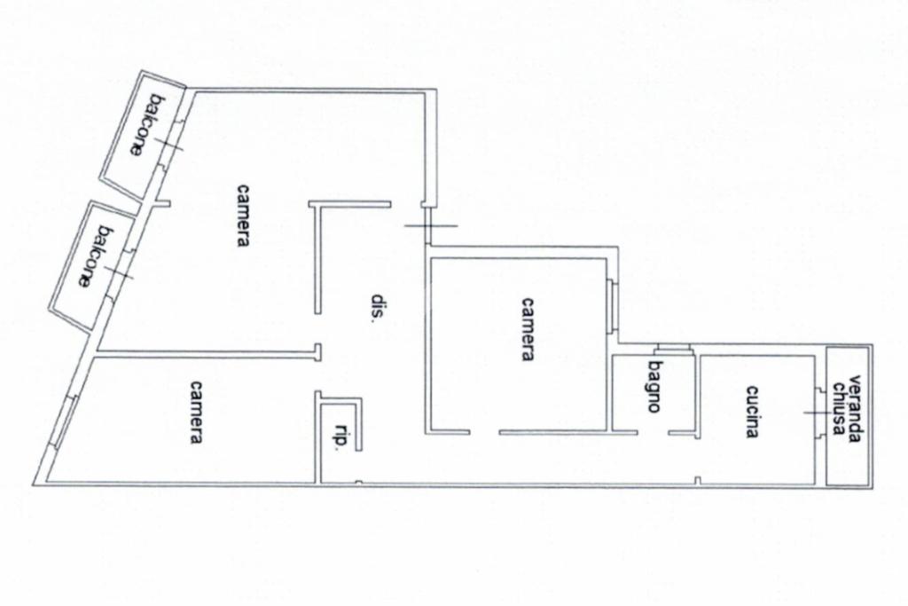
In una delle zone più comode e servite della città, Via Monte Santo, proponiamo in vendita un appartamento di ampia metratura, posto al secondo piano di una palazzina tranquilla e ben abitata, servita da ascensore.

Una soluzione ideale per famiglie, per chi ama vivere in ambienti spaziosi, ma anche per chi è alla ricerca di un’opportunità da investimento, data la possibilità di riorganizzare e valorizzare gli spazi.

Superficie interna di circa 140 mq

4 camere da letto: ampie, luminose e ben disimpegnate, perfette per una grande famiglia o per ricavare studio/stanza ospiti

Cucina abitabile: spaziosa, con zona pranzo e possibilità di accesso a un balcone

Doppio servizio: due bagni funzionali,

Ripostiglio interno, ideale come dispensa

Ampio ingresso e corridoio, con possibilità di arredi su misura o armadi a muro

L’appartamento è situato in una zona comoda e strategica, servita da supermercati, scuole, fermate bus, farmacie, negozi e ristoranti, a pochi minuti dal centro e dalle principali arterie cittadine.

Mostra tutto

Nelle vicinanze

Trasporto pubblico Trasporto pubblico
Cagliari Santa Gilla
Cagliari Santa Gilla
1,3 Km
stazione di Cagliari Santa Gilla
stazione di Cagliari Santa Gilla
1,3 Km
Stazione
Stazione
2,4 Km
Municipio
Municipio
2,7 Km
Is Mirrionis (ang. via Montesanto)
Is Mirrionis (ang. via Montesanto)
40 m
Scuole Scuole
Scuola Primaria San Michele
130 m
Scuola Materna
180 m
Scuola materna
190 m
Scuola Materna "Ada Negri"
190 m
Istituto Superiore Primario Galileo Galilei
300 m
Farmacia Farmacia
Farmacia Popolare
430 m
Farmacia
650 m
Farmacia Dott. Orrù
1,3 Km
Parafarmacia Conad
1,4 Km
Farmacia Pedrazzini
1,9 Km
Ospedali Ospedali
Ospedale Santissima Trinità
450 m
Pronto Soccorso
1,4 Km
Ospedale Oncologico "Armando Businco"
1,4 Km
Ospedale San Michele
1,4 Km
Ospedale Microcitemico
1,5 Km
Supermercati Supermercati
Nonna Isa
210 m
Gieffe
300 m
Amelia Pam
460 m
Conad City
570 m
Super Pan
680 m
Negozi Negozi
Market e Panificio
300 m
CISALFA
1,1 Km
Porta
1,7 Km
L'angolo dei sapori
2,1 Km
Pasticceria Manuel
2,1 Km
Bar Bar
Bar Lobina
950 m
Bar Marius
1,3 Km
Alex Bar
1,5 Km
Sette Vizi s.r.l.
1,8 Km
Bar Diamante
1,8 Km
Ristoranti Ristoranti
Pizzeria Evolution 2
380 m
Ristorante La Scala
590 m
Ristoro Rosa Dei Venti
900 m
Ristoranti
1,0 Km
Locanda dei buoni e cattivi
1,5 Km
Mostra tutto

Caratteristiche

Rif.:
61113363
Piano:
2 di 4 con ascensore (Piano medio)
Balconi:
2
Camere da letto:
4
Arredamento:
Assente
Condizionamento:
Assente
Mostra tutto
Prezzo Prezzo
€ 205.000
Rata mutuo Rata mutuo
€ 966 / mese
Spese annue Spese annue
€ 600
Proponi il tuo prezzoProponi il tuo prezzo

Classe Energetica

G
G
G
G
G
G
G
G
G
EP invernale del fabbricato:
EP estiva del fabbricato:
Anno di costruzione:
1965
Riscaldamento:
Assente

Ti interessa visionare l'immobile?

Fissa un appuntamento  Fissa un appuntamento

Richiedi informazioni

Clicca su Leggi per aprire l'informativa
* Questi campi sono obbligatori

Calcola il tuo mutuo

Semplice e senza impegno
Anticipo

( % )
Mutuo

( % )

pochi semplici passi

inserisci i tuoi dati
Questionario completato
Grazie per aver richiesto un appuntamento senza impegno con un nostro Consulente del Credito e Assicurativo.

Hai inserito correttamente tutti i dati necessari e a breve riceverai una e-mail con un link da convalidare per inviare i tuoi dati.
Affiliato
Immobiliare Maglias Srl
Via Is Mirrionis, 130 09122 Cagliari (CA)

Il nostro staff


  • Nicolò Carlo Bianco
    Collaboratore

  • Luca Marras
    Affiliato

  • Nicola Tiddia
    Collaboratore
Via Is Mirrionis, 130 09122 Cagliari (CA)
Zona: Is Mirrionis - San Michele - Tuvixeddu
Mostra su mappa
Orari: Lunedì 09:00/13:00 - 16:00/20:00. Dal martedì al venerdì 09:00/13:00 - 14:30/18:30 sabato 09.00-13.00
Affiliato
Immobiliare Maglias Srl
Via Is Mirrionis, 130 09122 Cagliari (CA)

2026 Tecnocasa Franchising S.p.A. - P. IVA 08365160152 - Via Monte Bianco 60/A 20089 Rozzano (MI). Ogni agenzia ha un proprio titolare ed è autonoma. Privacy policy | Policy utilizzo | Cookie policy